Meer informatie?
Venster sluiten ×
Meer informatie?
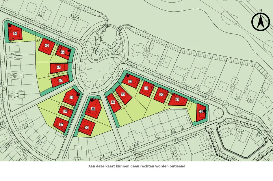
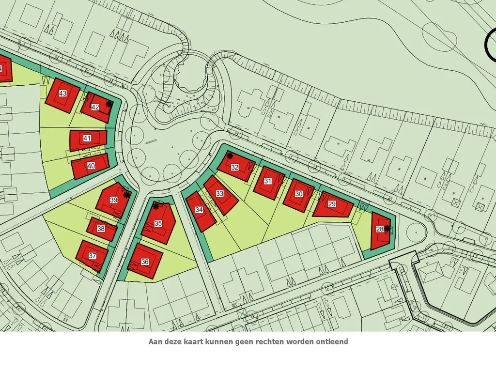
Bouwkavel, bouwnummer 37

Bouwkavel, bouwnummer 37

MIDDELBURG

verkocht

verkocht

Omschrijving

Behalve woningen worden in Woonpark Mortiere ook diverse kavels aangeboden. Dus als u altijd al in Mortiere heeft willen wonen én uw eigen vrijstaande droomwoning heeft willen realiseren, dan is dit uw kans!



Maak een keuze uit één van de kavels aan de Duke Ellingtonstraat en realiseer een vrijstaande woning met garage in de voor Mortiere kenmerkende bouwstijl.



Project Woonpark Mortiere

Aan de zuidzijde van Middelburg, ideaal ten opzichte van ontsluitingswegen vormt zich iets moois: Woonpark Mortiere! Dé groene en waterrijke woonwijk van Middelburg; de culturele en monumentenstad van Zeeland waar bovendien het provinciaal bestuur zitting houdt in de gebouwen direct gelegen aan het Abdijplein.

In een mooi gemêleerde samenstelling vinden we in Woonpark Mortiere immers riante vrijstaande villa's, karakteristieke twee-onder-een-kap woningen, klassieke rijwoningen en levensloopbestendige woningen, die nergens een massaliteit krijgen. Daarnaast is er een beperkt aantal vrije kavels, waar binnen de aangeven architectonische context zelf gebouwd kan worden.



Omgeving

Direct grenzend aan Woonpark Mortiere ligt de 9-holes golfbaan. Een prima onderhouden baan, waar veel liefhebbers inmiddels hun weg naar hebben gevonden. In de direct aangrenzende wijken zijn winkelcentra te vinden, waar u terecht kunt voor de dagelijkse boodschappen. U vindt hier tal van winkels, waaronder verschillende supermarkten.

Verder zijn in Middelburg uiteraard diverse scholen gevestigd. Basisonderwijs en voortgezet onderwijs zijn rijkelijk vertegenwoordigd, maar tevens is er een universiteit gevestigd: Rooseveld Academy. Voor het HBO onderwijs bent u aangewezen op de Hogeschool Zeeland te Vlissingen.
Lees meer

Kenmerken

Overdracht

Status
verkocht
Lees meer

Media

Interesse?

Neem contact op!

0118-460300 info@schinkeldeweerd.nl