Meer informatie?
Venster sluiten ×
Meer informatie?
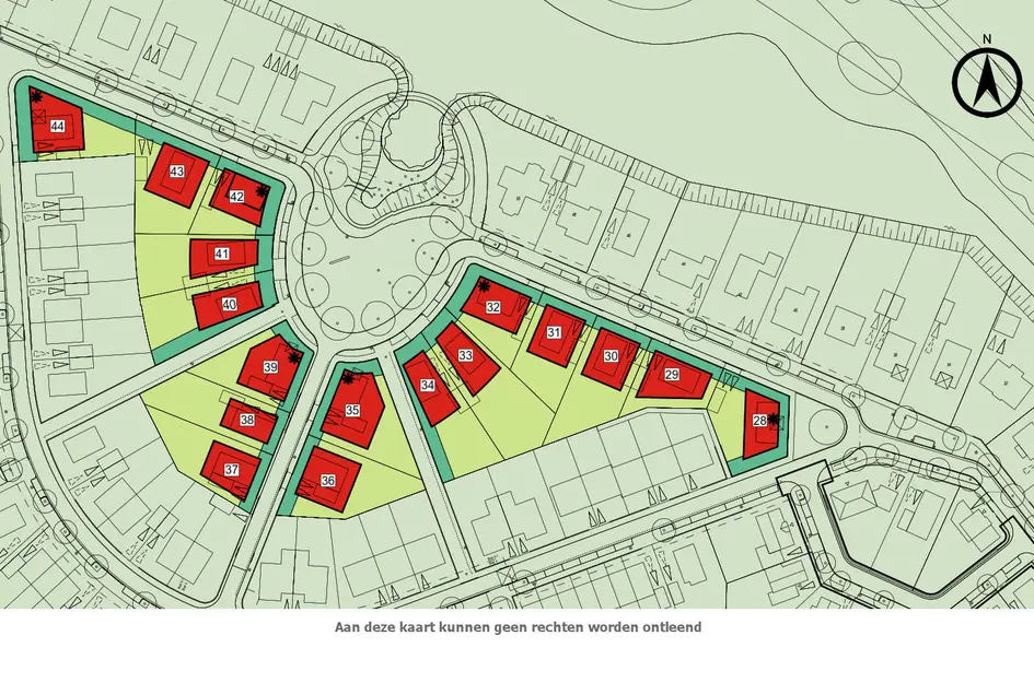
Bouwkavel, bouwnummer 43

Bouwkavel, bouwnummer 43

MIDDELBURG

verkocht

verkocht

Omschrijving

Architectuur

De architectuur in Mortiere kenmerkt zich door een typisch Zeeuwse uitstraling met stijlkenmerken uit de jaren ‘30. Het beeld in Mortiere onderscheid zich in materiaaltoepassing, kleur en vormen. Een aantal van deze typerende architectonische kenmerken staat hieronder beschreven:

- Hellende daken tussen 30 en 60 graden, gedekt met keramische pannen;

- Bebouwingsaccenten in zichtlijnen mogen afwijkende kap- of dakvormen hebben;

- Rode, roodbruine of paarsrode baksteen als overheersend gevelmateriaal (meer dan 70%);

- Uitzondering daarop zijn een aantal helder witte woningen;

- Ondergeschikt in het volledige straatbeeld beschoten zwarte delen (planken), wit gekeimde of gepleisterde gevels;

- Garages en overige bijgebouwen dienen in de architectonische stijl van de woning te worden uitgevoerd;

- Garages worden met hellende pannendaken gedekt, waarbij losse garages of bijgebouwen bij voorkeur in zwarte delen worden uitgevoerd;

- Wit kozijnwerk.



Erfscheidingen voorzijde

In Mortiere zijn alle erfscheidingen op de erfgrens tussen openbare en private ruimten duurzaam vormgegeven met een bakstenen muurtje of een hekwerk. De maximale hoogte van deze tuinmuurtjes bedraagt 1 meter, evenals de erfscheiding tot aan de voorgevellijn. De erfscheidingen van de vrije kavels moeten eveneens op deze manier worden gecreëerd. Tussen de percelen bent u vrij om een afscheiding te maken zoals een haag, muur of hekwerk.



Parkeerplaatsen

Op eigen terrein moeten achter de voorgevelrooilijn, naast elkaar, twee parkeerplaatsen worden gerealiseerd. Hiervoor moet een minimale ruimte van 5,5 bij 5,5 meter vrijgehouden worden van bebouwing, aan de zijkant van de woning achter de voorgevel.



Supervisie

Het ontwerp en de materiaalkeuze dienen op basis van het beeldkwaliteitplan, in overleg met de stedenbouwkundig supervisor te worden bepaald. Geadviseerd wordt het ontwerp en de materiaalkeuze vroegtijdig aan een architect of aan de supervisor voor te leggen.
Lees meer

Kenmerken

Overdracht

Status
verkocht
Lees meer

Media

Interesse?

Neem contact op!

0118-460300 info@schinkeldeweerd.nl