Meer informatie?
Venster sluiten ×
Meer informatie?
Langendam 33C
Langendam 33C
Langendam 33C
Langendam 33C
Langendam 33C

Langendam 33C

ZOUTELANDE

verkocht

verkocht

appartement
Bouwjaar 2025
Woonoppervlakte 79 m²
Aantal slaapkamers 2

Omschrijving

Hof 1933

In het hart van het geliefde dorp Zoutelande worden twee intieme appartementsgebouwen gerealiseerd rond een uitnodigend en groen hof. Hof 1933 is ontwikkeld met oog voor detail, comfort en met liefde voor de prachtige omgeving. In totaal worden er 17 appartementen gerealiseerd, allemaal voorzien van ten minste één eigen parkeerplaats en eigen berging.



Locatie

De locatie is uniek, midden in de Zeeuwse badplaats, op loopafstand van het strand, sfeervolle strandtenten, terrasjes en restaurantjes. Hier geniet u optimaal van het goede Zeeuwse leven. Het dorp biedt daarnaast genoeg mogelijkheden voor de dagelijks boodschappen als een supermarkt, bakker en drogist, maar ook dorps- en sportverenigingen zijn er voldoende.



Specificaties Hof 1933:

- kleinschalige appartementsgebouwen

- laagbouw, 3 woonlagen

- 17 appartementen in totaal

- eigen parkeerplaats

- eigen berging

- kunststof kozijnen

- HR++ beglazing

- inclusief sanitair

- warmtepomp (verwarmen én koelen mogelijk)

- elektrische boiler voor warm water

- warmteterugwininstallatie

- zonnepanelen t.b.v. algemene, gezamenlijke ruimtes



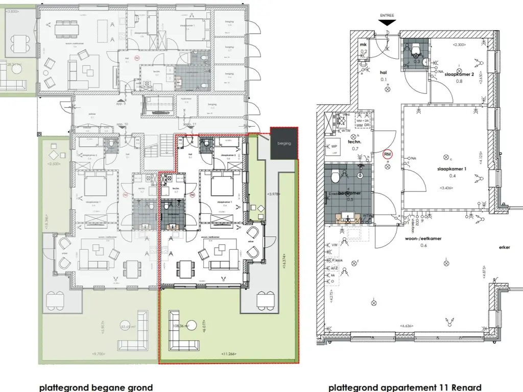
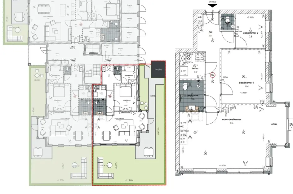
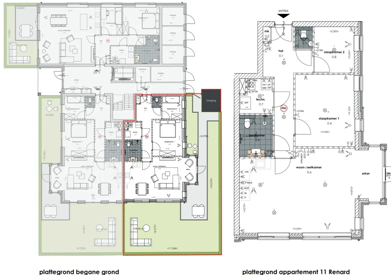
Bouwnummer 11

Het royale appartement op de begane grond met een woonoppervlakte van ca. 79m2 bevindt zich in het gebouw ''Renard''. Via de entree bereikt u alle verstrekken van het appartement waaronder de prachtig ruime woonkamer, de master bedroom, de 2e fijne slaapkamer, de luxe badkamer, het (gasten)toilet met fontein en de technische ruimte. Binnenkomend in de woonkamer ervaart u direct een prettige woonsfeer door de vele raampartijen. Er is genoeg ruimte om een geweldige woonkeuken te realiseren. De ruime badkamer is voorzien van een inloopdouche, wastafelmeubel en toilet. Voor zowel de badkamer als het (gasten)toilet is een fraai pakket aan tegels en sanitair samengesteld. De openslaande deur aan de rechterzijde van de woonkamer geeft toegang tot de zonnige, sfeervolle tuin van ca. 108m2. Hier kunt u optimaal genieten! De berging vindt u naast het appartementsgebouw. Handig voor het opbergen van uw fiets en andere spullen. Tevens behoort tot dit appartement één onoverdekte parkeerplaats.
Lees meer

Kenmerken

Overdracht

Status
verkocht

Bouw

Soort woning
appartement
Soort appartement
portiekflat
Aantal woonlagen
1
Bouwvorm
nieuwbouw
Bouwjaar
2025
Open portiek
nee
Onderhoud binnen
uitstekend
Onderhoud buiten
uitstekend
Voorzieningen
mechanische ventilatie, lift
Isolatie
volledig geisoleerd, hr glas

Energie

Verwarming
vloerverwarming geheel, warmtepomp, warmte terugwininstallatie
Warm water
elektrische boiler eigendom

Oppervlakten en inhoud

Woonoppervlakte
79 m²

Indeling

Aantal kamers
3
Aantal slaapkamers
2

Buitenruimte

Ligging
in woonwijk

Garage / Schuur / Berging

Parkeergelegenheid
op eigen terrein
Schuur/berging
vrijstaand hout
Lees meer

Interesse?

Neem contact op!

0118-460300 info@schinkeldeweerd.nl