Meer informatie?
Venster sluiten ×
Meer informatie?
Margrietstraat 16
Margrietstraat 16
Margrietstraat 16
Margrietstraat 16
Margrietstraat 16
Margrietstraat 16
Margrietstraat 16
Margrietstraat 16
Margrietstraat 16
Margrietstraat 16
Margrietstraat 16
Margrietstraat 16
Margrietstraat 16
Margrietstraat 16
Margrietstraat 16
Margrietstraat 16
Margrietstraat 16
Margrietstraat 16
Margrietstraat 16
Margrietstraat 16
Margrietstraat 16
Margrietstraat 16
Margrietstraat 16

Margrietstraat 16

OOST-SOUBURG

verkocht o.v.

€ 259.000,- k.k.

woonhuis
hoekwoning
Bouwjaar 1960
Woonoppervlakte 80 m²
Aantal slaapkamers 2

Omschrijving

Instapklare hoekwoning met moderne afwerking!
Deze sfeervolle woning is de afgelopen jaren volledig gemoderniseerd en tot in de puntjes verzorgd. Zo beschikt het huis over een luxe open keuken, een vernieuwde badkamer en een eigentijdse afwerking in warme, moderne tinten. Hier kun je direct zonder klussen intrekken!

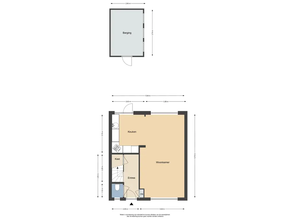
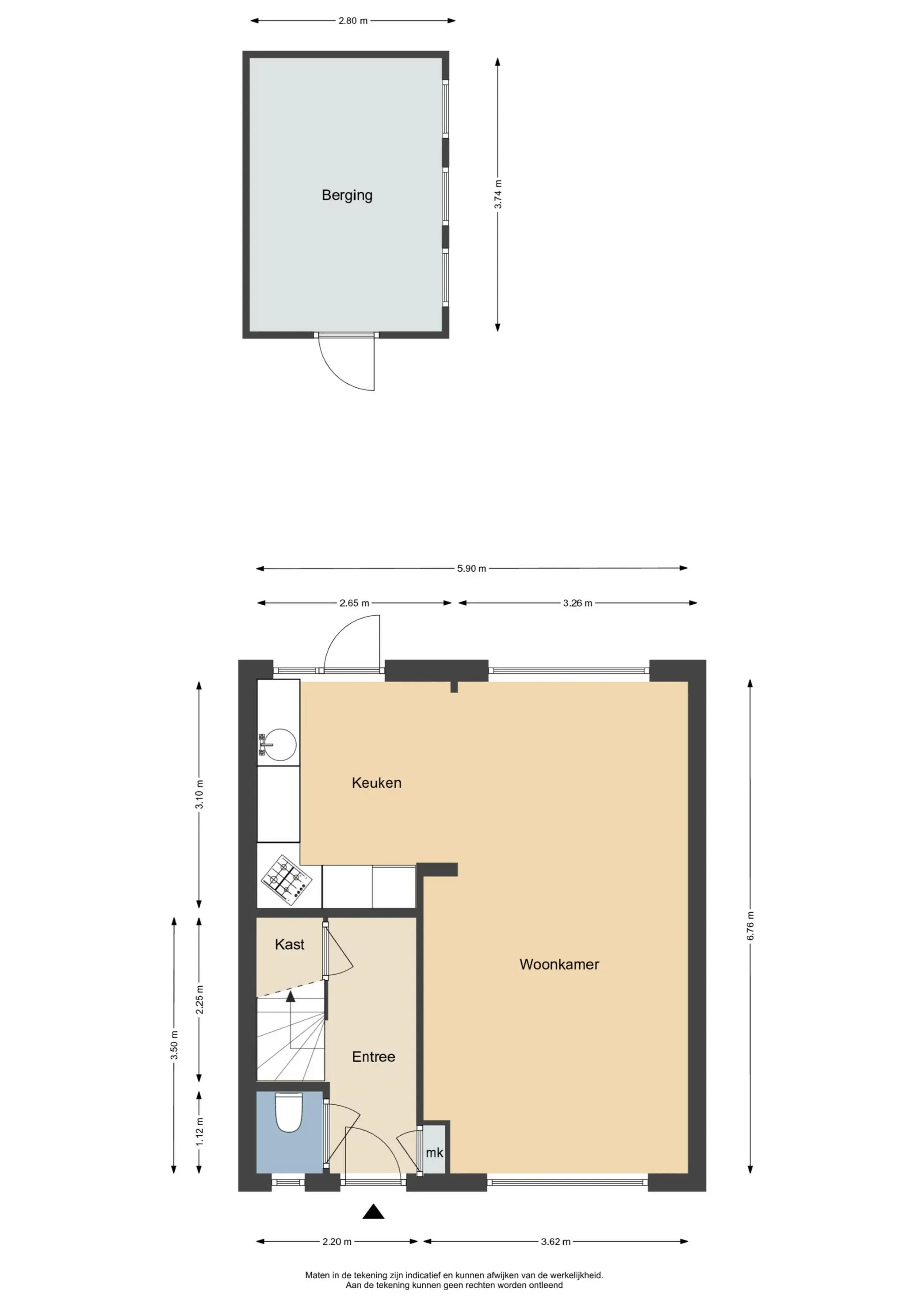
Begane grond
De lichte doorzonwoonkamer is voorzien van vloerverwarming en een stijlvolle tegelvloer. De open keuken is uitgerust met alle benodigde inbouwapparatuur en vormt een gezellige centrale plek in huis. Vanuit de hal bereik je tevens het toilet en een ruime trapkast.

Eerste verdieping
Hier bevinden zich twee slaapkamers, waaronder een royale ouderslaapkamer aan de achterzijde. Het plafond is hier opengewerkt tot in de nok, wat zorgt voor een ruimtelijk en bijzonder effect. De voormalige badkamer is omgetoverd tot praktische bergruimte annex waskamer. Daarnaast is één slaapkamer verbouwd tot een luxe badkamer met ligbad, aparte douche, vrij hangend toilet, wastafelmeubel en designradiator.

Zolder
Via een vlizotrap is de zolder bereikbaar, ideaal als extra bergruimte.

Tuin
De achtertuin is diep, zonnig en onderhoudsvriendelijk aangelegd. Dankzij de zuid ligging en de afstand tot achtergelegen bebouwing geniet je hier van veel zon én privacy. De tuin beschikt bovendien over een stenen berging en een vrije achterom.

Overig
De woning wordt verwarmd middels een cv-ketel en is deels voorzien van glasisolatie. Ook de zoldervloer is geïsoleerd.

Een heerlijk compleet huis, gelegen in een groene, ruim opgezette wijk!

Bijzonderheden:
- Standaard dient koper een bankgarantie c.q. waarborgsom van 10% van de koopprijs te stellen c.q. te storten via de notaris. Dit zal opgenomen worden in de koopovereenkomst;
- In de koopovereenkomst zal tevens een artikel worden opgenomen dat verband houdt met de ouderdom;
- Bij woningen en appartementen met een oorspronkelijk bouwjaar tot 1993 zal er in de koopovereenkomst een asbestclausule worden opgenomen.

Deze informatie is door ons met de nodige zorgvuldigheid samengesteld. Onzerzijds wordt echter geen enkele aansprakelijkheid aanvaard voor enige onvolledigheid, onjuistheid of anderszins, dan wel de gevolgen daarvan. Alle opgegeven maten en oppervlakten zijn indicatief.
Lees meer

Kenmerken

Overdracht

Vraagprijs
€ 259.000,- k.k.
Status
verkocht onder voorbehoud
Aanvaarding
in overleg

Bouw

Soort woning
woonhuis
Soort woonhuis
eengezinswoning
Type woonhuis
hoekwoning
Aantal woonlagen
3
Bouwvorm
bestaande bouw
Bouwjaar
1960
Huidige bestemming
woonruimte
Onderhoud binnen
goed
Onderhoud buiten
goed
Voorzieningen
mechanische ventilatie, glasvezel kabel, natuurlijke ventilatie
Isolatie
dubbel glas

Energie

Energielabel
E
Verwarming
cv ketel, vloerverwarming gedeeltelijk
Warm water
cv ketel
C.V.-ketel
Nefit (gas gestookt combiketel, eigendom)

Oppervlakten en inhoud

Woonoppervlakte
80 m²
Perceeloppervlakte
120 m²
Inhoud
300 m³
Inpandige ruimte oppervlakte
7 m²
Bergruimte oppervlakte
10 m²

Indeling

Aantal kamers
3
Aantal slaapkamers
2

Buitenruimte

Ligging
aan drukke weg, in woonwijk
Tuin
achtertuin met een oppervlakte van 68 m² en is gelegen op het zuidwesten

Garage / Schuur / Berging

Garage
geen garage
Parkeergelegenheid
openbaar parkeren
Schuur/berging
vrijstaand steen
Lees meer

Interesse?

Neem contact op!

0118-460300 info@schinkeldeweerd.nl