Meer informatie?
Venster sluiten ×
Meer informatie?
Reggestraat 7
Reggestraat 7
Reggestraat 7
Reggestraat 7
Reggestraat 7
Reggestraat 7
Reggestraat 7
Reggestraat 7
Reggestraat 7
Reggestraat 7
Reggestraat 7
Reggestraat 7
Reggestraat 7
Reggestraat 7
Reggestraat 7
Reggestraat 7
Reggestraat 7
Reggestraat 7
Reggestraat 7
Reggestraat 7
Reggestraat 7
Reggestraat 7
Reggestraat 7
Reggestraat 7
Reggestraat 7
Reggestraat 7
Reggestraat 7
Reggestraat 7
Reggestraat 7
Reggestraat 7
Reggestraat 7
Reggestraat 7

Reggestraat 7

OOST-SOUBURG

nieuw

€ 299.500,- k.k.

woonhuis
hoekwoning
Bouwjaar 1970
Woonoppervlakte 89 m²
Aantal slaapkamers 3

Omschrijving

Woningzoekers opgelet!
Schinkel de Weerd Makelaardij mag u namens haar opdrachtgever deze keurig afgewerkte en uitstekend onderhouden hoekwoning te koop aanbieden. De woning is voorzien van kunststof kozijnen met HR++ glas, muur- en dakisolatie, 6 zonnepanelen, elektrische rolluiken en een zonnescherm, wat resulteert in energielabel A.
Het woonoppervlak bedraagt ca. 89 m² op een perceel van 169 m², met een royale woonkamer, open keuken, drie ruime slaapkamers en een nette badkamer. Er is bovendien de mogelijkheid om een vaste trap naar de tweede verdieping te plaatsen, waarmee extra leefruimte kan worden gecreëerd.

Aan de achterzijde grenst de woning aan een groenstrook met daarachter garageboxen. Aan de voorzijde is volop parkeergelegenheid aanwezig en geniet u vanuit de woonkamer van een fraai uitzicht over het met bomen omzoomde laantje.

Welkom aan de Reggestraat 7 te Oost-Souburg

Indeling woning
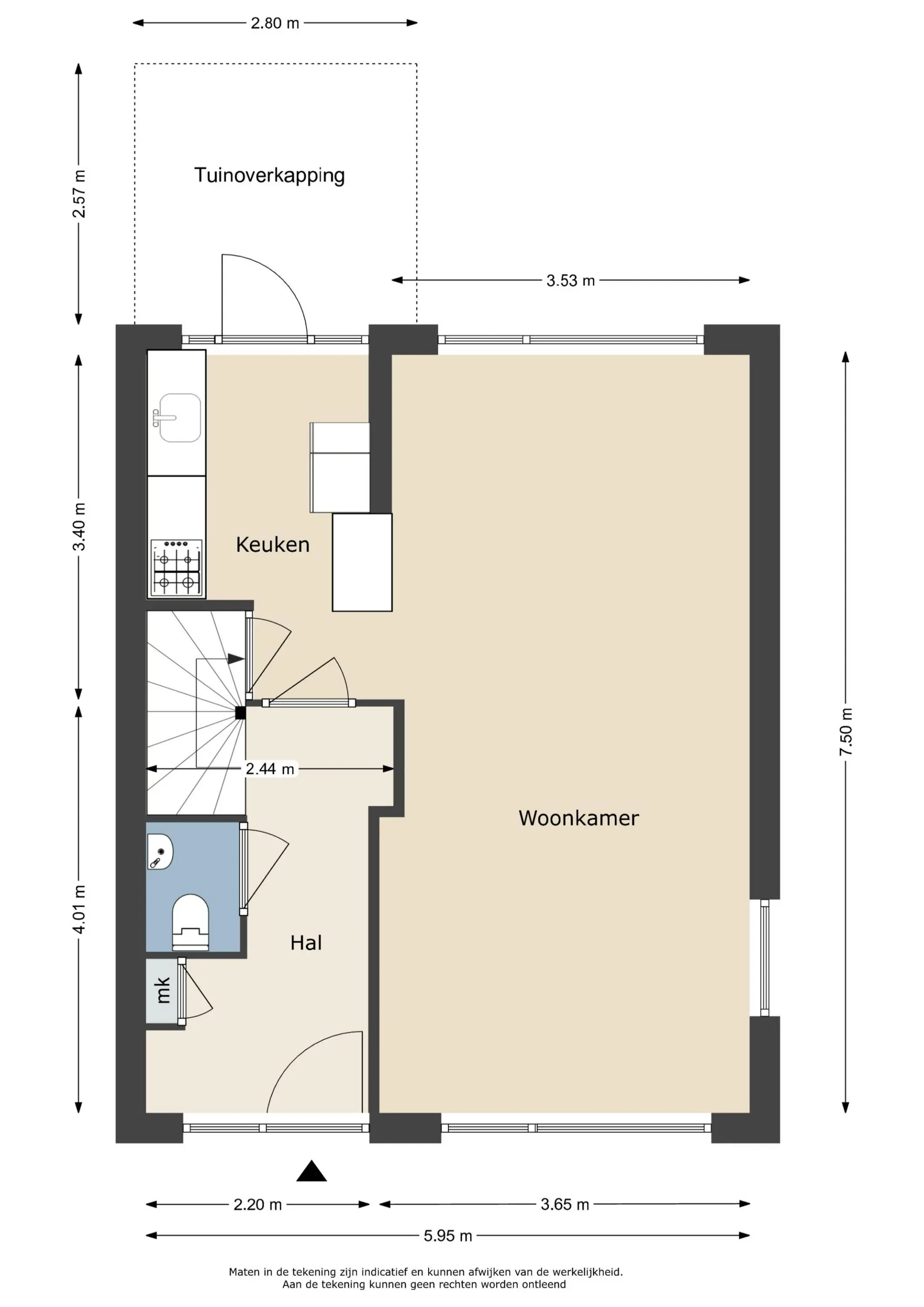
U betreedt de woning via de ruime hal, waar zich de meterkast (vernieuwd, 7 groepen), het toilet, de trapopgang en de trapkast bevinden. Vanuit de hal bereikt u de halfopen keuken, voorzien van diverse inbouwapparatuur zoals een combi-oven, koelkast, inductiekookplaat, afzuigkap en close-in boiler. Vanuit de keuken is er toegang tot de achtertuin.

De woonkamer is ruim opgezet en licht dankzij de grote raampartijen, inclusief een zijraam. Aan de voorzijde is een elektrisch bedienbaar zonnescherm aanwezig en aan de achterzijde een rolluik.

Indeling 1e verdieping
Op de eerste verdieping bevinden zich drie ruime slaapkamers: twee aan de achterzijde en één aan de voorzijde. Aan de voorzijde is tevens de badkamer gelegen, uitgerust met een douche, wastafel en aansluitingen voor witgoed.
Via de vlizotrap bereikt u de tweede verdieping. Door het plaatsen van een vaste trap kunt u deze verdieping volledig bij de woonruimte betrekken en zo extra woonoppervlakte realiseren.

De tweede verdieping beschikt over een dakraam voor daglicht en ventilatie. Hier vindt u de cv-installatie (Intergas, 2023) en de omvormer voor de zonnepanelen. Momenteel wordt deze verdieping gebruikt als praktische bergzolder – ideaal voor extra opslag.

Tuin
De tuin is royaal en bestaat uit een voor-, zij- en achtertuin, samen goed voor een prettige buitenruimte. Alles is netjes aangelegd en onderhoudsvriendelijk. Aan de achterzijde bevindt zich een overkapping, ideaal om spullen droog te stallen. In de tuin is zowel elektra als een buitenkraan aanwezig.
De stenen berging achterin de tuin beschikt eveneens over elektra en biedt voldoende ruimte voor fietsen en tuingereedschap. De schuttingen zijn relatief nieuw en verkeren in uitstekende staat.

Bijzonderheden:
- Standaard dient koper een bankgarantie c.q. waarborgsom van 10% van de koopprijs te stellen c.q. te storten via de notaris. Dit zal opgenomen worden in de koopovereenkomst;
- In de koopovereenkomst zal tevens een artikel worden opgenomen dat verband houdt met de ouderdom;
- Bij woningen en appartementen met een oorspronkelijk bouwjaar tot 1993 zal er in de koopovereenkomst een asbestclausule worden opgenomen.

Deze informatie is door ons met de nodige zorgvuldigheid samengesteld. Onzerzijds wordt echter geen enkele aansprakelijkheid aanvaard voor enige onvolledigheid, onjuistheid of anderszins, dan wel de gevolgen daarvan. Alle opgegeven maten en oppervlakten zijn indicatief.
Lees meer

Kenmerken

Overdracht

Vraagprijs
€ 299.500,- k.k.
Status
beschikbaar
Aanvaarding
in overleg

Bouw

Soort woning
woonhuis
Soort woonhuis
eengezinswoning
Type woonhuis
hoekwoning
Aantal woonlagen
2
Bouwvorm
bestaande bouw
Bouwjaar
1970
Huidige bestemming
woonruimte
Onderhoud binnen
goed_tot_uitstekend
Onderhoud buiten
goed_tot_uitstekend
Voorzieningen
rolluiken, tv kabel
Isolatie
dakisolatie, muurisolatie, dubbel glas

Energie

Energielabel
A
Verwarming
cv ketel
Warm water
cv ketel
C.V.-ketel
Intergas (gas gestookt combiketel, uit 2023, eigendom)

Oppervlakten en inhoud

Woonoppervlakte
89 m²
Perceeloppervlakte
169 m²
Inhoud
369 m³
Inpandige ruimte oppervlakte
15 m²
Bergruimte oppervlakte
9 m²
Buitenruimte oppervlakte
7 m²

Indeling

Aantal kamers
4
Aantal slaapkamers
3

Buitenruimte

Ligging
aan rustige weg, in woonwijk
Tuin
achtertuin met een oppervlakte van 63 m² en is gelegen op het westen

Garage / Schuur / Berging

Garage
geen garage
Parkeergelegenheid
openbaar parkeren
Schuur/berging
vrijstaand steen
Lees meer

Interesse?

Neem contact op!

0118-460300 info@schinkeldeweerd.nl