Meer informatie?
Venster sluiten ×
Meer informatie?
Romp 11
Romp 11
Romp 11
Romp 11
Romp 11
Romp 11
Romp 11
Romp 11
Romp 11
Romp 11
Romp 11
Romp 11
Romp 11
Romp 11
Romp 11
Romp 11
Romp 11
Romp 11
Romp 11
Romp 11
Romp 11
Romp 11
Romp 11
Romp 11
Romp 11
Romp 11
Romp 11
Romp 11
Romp 11
Romp 11
Romp 11

Romp 11

MIDDELBURG

nieuw

€ 349.000,- k.k.

woonhuis
tussenwoning
Bouwjaar 1983
Woonoppervlakte 117 m²
Aantal slaapkamers 4

Omschrijving

Woningzoekers opgelet! In de geliefde en kindvriendelijke wijk Reijershove staat deze verrassend ruime en instapklare gezinswoning met zonnige tuin op het zuidwesten. Deze woning is tot in de puntjes verzorgd en biedt geweldig veel woonruimte. Bij binnenkomst ervaart u direct de sfeervolle beleving en u geniet hier o.a. van een ruime en bovenal lichte woonkamer, charmante open keuken, 4 uiterst ruime slaapkamers, prachtig sanitair en een fijne zonnige tuin met berging én vrije achterom. Kortom, een ideale gezinswoning!

De woning is begin november 2026 beschikbaar.

Enkele bijzonderheden;
- fijne woonlocatie op korte afstand van het stadscentrum
- vernieuwd sanitair
- nieuwe kunststof kozijnen
- rolluiken en zonwering
- 12 zonnepanelen (405 Wp).

Welkom aan de Romp 11 te Middelburg.

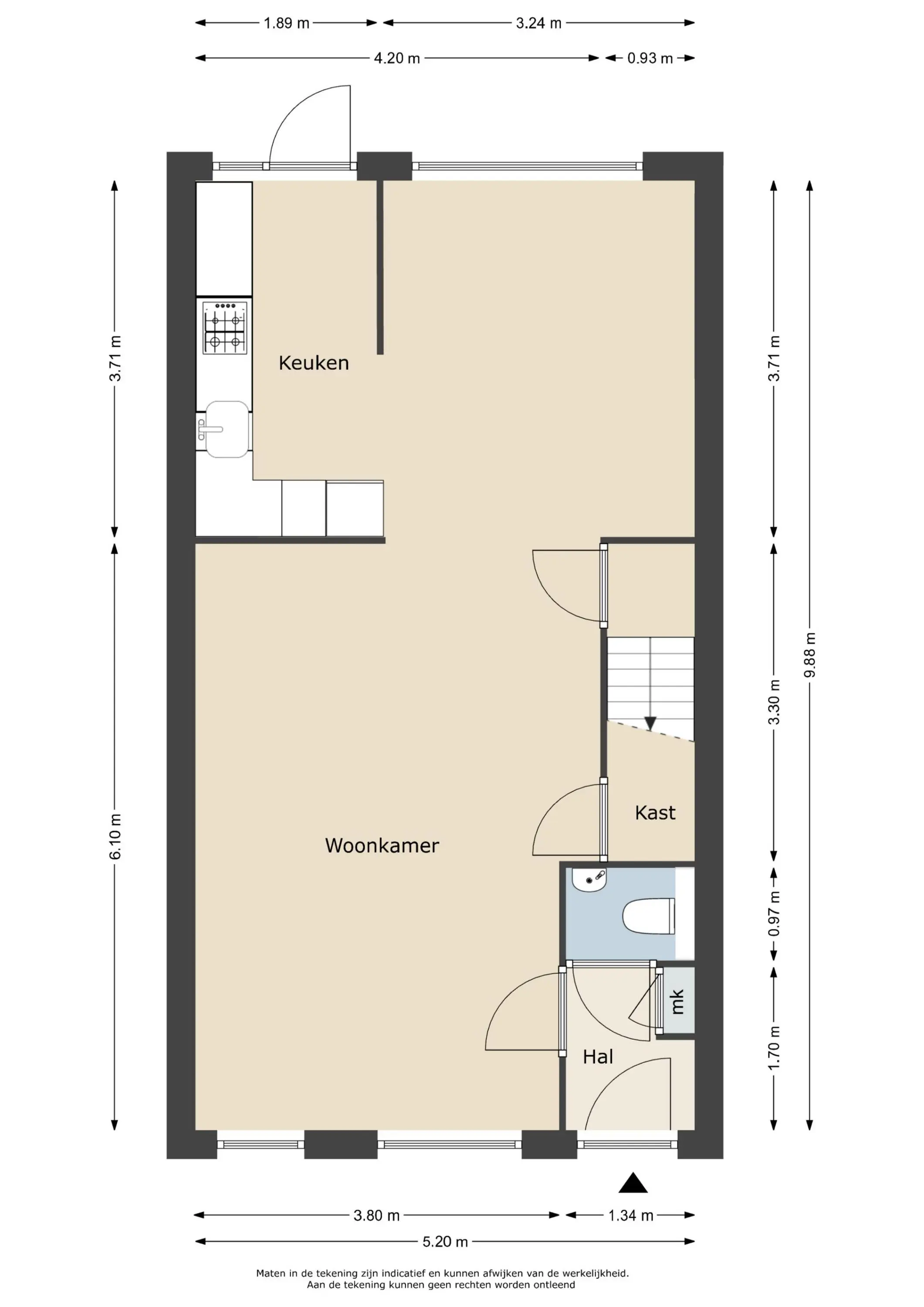
Indeling:

Begane grond
Entree in de hal met meterkast (vernieuwd met 3 fasen), garderobe, modern toilet en doorgang naar de woonkamer. Een zeer ruimtelijk en keurig verzorgd geheel waarbij de zithoek aan de straatzijde is gesitueerd en de woonkeuken aan de tuinzijde. Halverwege de woonkamer bevindt zich een praktische trapkast. De open keuken is uitgevoerd in een ruime hoekopstelling met een composiet werkblad, lichte kastfronten en uiteraard voorzien van de gewenste inbouwapparatuur. Denk aan een Quooker, AEG Inductiekookplaat, combi-oven, koelkast en vaatwasser. Vanuit de keuken heeft u toegang tot de zonnige achtertuin.

1e verdieping
Overloop geeft toegang tot 3 ruime slaapkamers, waaronder de 2 royale slaapkamers aan de voor- en achterzijde. De badkamer is recent vernieuwd en biedt een fraai ligbad- met douchecombinatie, tweede toilet en een wastafel met bijpassend meubel. Voorts treft u op de overloop een praktische opbergkast.

2e verdieping
Via een vaste trap bereikt u de absoluut volwaardige 2e verdieping. De overloop verleent toegang tot de 4e ruime en lichte slaapkamer met een groot dakraam, hoge nok en opbergmogelijkheden in de ingebouwde kasten en uiteraard ook achter het knieschot. Op de overloop treft u de wasmachine opstelling en de CV-ketel (2018, CW 5). De overloop biedt daarnaast toegang tot een praktische bergzolder, ideaal voor het opbergen van seizoensspullen en overige bergruimte.

Tuin
De achtertuin is keurig en onderhoudsvriendelijk aangelegd en ligt gunstig op het zuidwesten, waardoor u hier van ’s middags tot ‘s avonds van de zon kunt genieten. Aan de achtergevel bevindt zich een elektrisch zonnescherm waardoor u ook kunt genieten van de schaduw. Achterin te de tuin treft u een ruime stenen berging met daarnaast de vrije achterom. De ligging is ideaal vanwege de zon en de privacy. Via de achtergelegen steeg is een speeltuin direct bereikbaar, zodat kinderen veilig buiten kunnen spelen.

Locatie
De woning is gelegen in een kindvriendelijke wijk en op korte afstand van de dagelijkse voorzieningen, het bruisende standscentrum en de uitvalswegen naar Goes en Vlissingen.

Enthousiast geworden? Neem dan contact op met Schinkel de Weerd Makelaardij voor een bezichtigingsafspraak. Wij laten u de woning graag zien!

Bijzonderheden:
- Standaard dient koper een bankgarantie c.q. waarborgsom van 10% van de koopprijs te stellen c.q. te storten via de notaris. Dit zal opgenomen worden in de koopovereenkomst;
- In de koopovereenkomst zal tevens een artikel worden opgenomen dat verband houdt met de ouderdom;
- Bij woningen en appartementen met een oorspronkelijk bouwjaar tot 1993 zal er in de koopovereenkomst een asbestclausule worden opgenomen.

Deze informatie is door ons met de nodige zorgvuldigheid samengesteld. Onzerzijds wordt echter geen enkele aansprakelijkheid aanvaard voor enige onvolledigheid, onjuistheid of anderszins, dan wel de gevolgen daarvan. Alle opgegeven maten en oppervlakten zijn indicatief.
Lees meer

Kenmerken

Overdracht

Vraagprijs
€ 349.000,- k.k.
Status
beschikbaar
Aanvaarding
in overleg

Bouw

Soort woning
woonhuis
Soort woonhuis
eengezinswoning
Type woonhuis
tussenwoning
Aantal woonlagen
3
Bouwvorm
bestaande bouw
Bouwjaar
1983
Huidige bestemming
woonruimte
Onderhoud binnen
goed
Onderhoud buiten
goed
Voorzieningen
mechanische ventilatie, rolluiken, buitenzonwering, glasvezel kabel, zonnepanelen, natuurlijke ventilatie
Isolatie
dakisolatie, muurisolatie, vloerisolatie, volledig geisoleerd, hr glas

Energie

Energielabel
B
Verwarming
cv ketel
Warm water
cv ketel
C.V.-ketel
Intergas Kompakt HRE CW5 (gas gestookt combiketel, uit 2018, eigendom)

Oppervlakten en inhoud

Woonoppervlakte
117 m²
Perceeloppervlakte
140 m²
Inhoud
405 m³
Bergruimte oppervlakte
10 m²

Indeling

Aantal kamers
5
Aantal slaapkamers
4

Buitenruimte

Ligging
in woonwijk
Tuin
achtertuin met een oppervlakte van 53 m² en is gelegen op het zuidwesten

Garage / Schuur / Berging

Garage
geen garage
Parkeergelegenheid
openbaar parkeren
Schuur/berging
vrijstaand steen
Lees meer

Interesse?

Neem contact op!

0118-460300 info@schinkeldeweerd.nl