Meer informatie?
Venster sluiten ×
Meer informatie?
Schaepmanstraat 57
Schaepmanstraat 57
Schaepmanstraat 57
Schaepmanstraat 57
Schaepmanstraat 57
Schaepmanstraat 57
Schaepmanstraat 57
Schaepmanstraat 57
Schaepmanstraat 57
Schaepmanstraat 57
Schaepmanstraat 57
Schaepmanstraat 57
Schaepmanstraat 57
Schaepmanstraat 57
Schaepmanstraat 57
Schaepmanstraat 57
Schaepmanstraat 57
Schaepmanstraat 57
Schaepmanstraat 57
Schaepmanstraat 57

Schaepmanstraat 57

VLISSINGEN

verkocht o.v.

€ 198.000,- k.k.

appartement
Bouwjaar 1967
Woonoppervlakte 65 m²
Aantal slaapkamers 3

Omschrijving

Starters opgelet! Keurig verzorgd appartement op de eerste verdieping, gelegen op een ideale locatie met uitzicht op het groene park én op korte afstand van de dagelijkse voorzieningen in de geliefde woonwijk Paauwenburg. U geniet hier van een ruime en lichte woonkamer mét zijraam, keurig verzorgde keuken, hagelnieuw sanitair, 3 slaapkamers en een fijn balkon met uitzicht over het groen. Verder een nieuwe cv-ketel en het gehele appartement is voorzien van kunststof kozijnen met HR beglazing. Tot slot, zoals gezegd is de locatie fantastisch: u bevindt zich namelijk op loop- en fietsafstand van de winkels, het strand en de boulevard. Kom snel kijken!

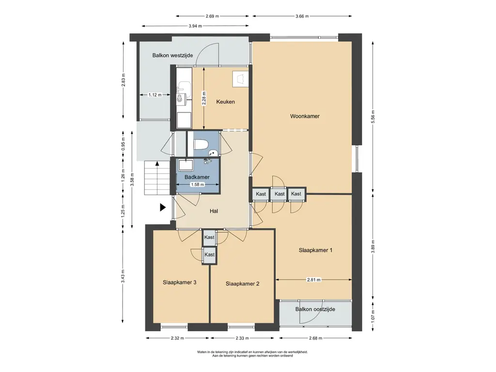
Indeling:

Begane grond
Entree in een gezamenlijk portiek met brievenbussen en trappenhuis naar het appartement op de eerste verdieping. Ook is hier een eigen berging aanwezig, waar u uw fiets kunt stallen. Halverwege de trapopgang treft u de vernieuwde eigen meterkast.

Eerste verdieping
Entree in appartement in de centrale hal met toilet en vanuit hier toegang tot alle woonvertrekken. Bij binnenkomst in de woonkamer ervaart u direct de ruimtelijkheid en de meerwaarde van het extra raam in de zijgevel. Hier dus een fijne mate aan lichtinval dankzij de grote raampartijen met vrij uitzicht op het groene park. Gezien de keuken zich bevindt in een separate ruimte heeft u meer dan genoeg ruimte voor een ruime zit- en eethoek.

De keuken treft u eveneens vanuit de centrale hal en bevindt zich een verzorgde keukenopstelling met lichte kastfronten en een grijs werkblad. Vanuit de keuken is het balkon te bereiken. Vanuit hier een fijn uitzicht en prettige bezonning. De ruimte naast het balkon kan worden ingericht voor het opstellen van de wasmachine.

Verder treft u in dit appartement 3 slaapkamers, waaronder de grote slaapkamer met toegang tot het balkon aan de oostzijde. Ook hier is sprake van een zeer prettige lichtinval. De badkamer is dit jaar nog vernieuwd en beschikt over een inloopdouche en wastafelmeubel.

Enthousiast geworden? Neem dan contact op met Schinkel de Weerd Makelaardij voor een bezichtigingsafspraak.

Bijzonderheden:
- Standaard dient koper een bankgarantie c.q. waarborgsom van 10% van de koopprijs te stellen c.q. te storten via de notaris. Dit zal opgenomen worden in de koopovereenkomst;
- In de koopovereenkomst zal tevens een artikel worden opgenomen dat verband houdt met de ouderdom;
- Bij woningen en appartementen met een oorspronkelijk bouwjaar tot 1993 zal er in de koopovereenkomst een asbestclausule worden opgenomen.

Deze informatie is door ons met de nodige zorgvuldigheid samengesteld. Onzerzijds wordt echter geen enkele aansprakelijkheid aanvaard voor enige onvolledigheid, onjuistheid of anderszins, dan wel de gevolgen daarvan. Alle opgegeven maten en oppervlakten zijn indicatief.
Lees meer

Kenmerken

Overdracht

Vraagprijs
€ 198.000,- k.k.
Status
verkocht onder voorbehoud
Aanvaarding
in overleg

VvE checklist

Inschrijving KVK
Ja
Jaarlijkse vergadering
Ja
Periodieke bijdrage
Ja (167,00 per maand)
Reservefonds aanwezig
Ja
Onderhoudsplan
Ja
Opstalverzekering
Ja

Bouw

Soort woning
appartement
Soort appartement
portiekflat
Aantal woonlagen
1
Woonlaag
1
Bouwvorm
bestaande bouw
Bouwjaar
1967
Open portiek
nee
Huidige bestemming
woonruimte
Onderhoud binnen
goed
Onderhoud buiten
goed
Voorzieningen
natuurlijke ventilatie
Isolatie
dubbel glas

Energie

Energielabel
F
Verwarming
cv ketel
Warm water
cv ketel
C.V.-ketel
(gas gestookt combiketel, eigendom)

Oppervlakten en inhoud

Woonoppervlakte
65 m²
Buitenruimte oppervlakte
9 m²

Indeling

Aantal kamers
4
Aantal slaapkamers
3

Buitenruimte

Ligging
aan park, in woonwijk

Garage / Schuur / Berging

Garage
geen garage
Parkeergelegenheid
openbaar parkeren
Schuur/berging
inpandig
Lees meer

Interesse?

Neem contact op!

0118-460300 info@schinkeldeweerd.nl